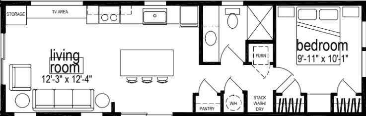
Homes | GS ADU D400N